Loading…

Topics新着情報

Topics新着情報

2023.03.17【嬉野】新築外構工事ご依頼ありがとうございました。

嬉野市のF様邸の新築住宅で外構工事をいたしました!

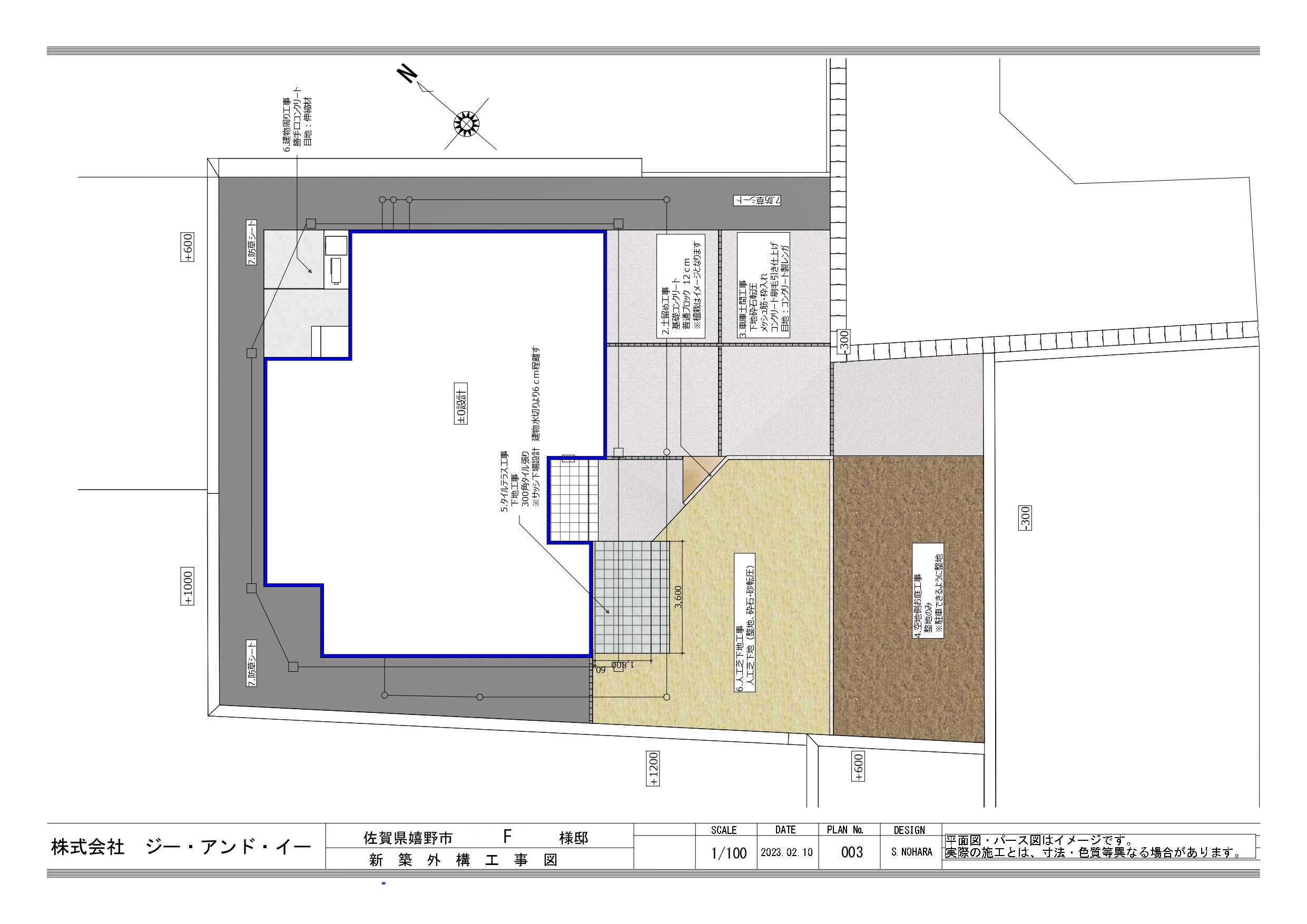
提案図案

西野エクステリア 嬉野 外構工事(パース) 西野エクステリア 嬉野 外構工事(パース) 西野エクステリア 嬉野 外構工事(パース)



施工の様子は こちら ↓↓↓


西野エクステリア 嬉野 外構工事 西野エクステリア 嬉野 外構工事 

人工芝の下地作りです。

西野エクステリア 嬉野 外構工事 西野エクステリア 嬉野 外構工事 西野エクステリア 嬉野 外構工事


完成!!

西野エクステリア 嬉野 外構工事 西野エクステリア 嬉野 外構工事 西野エクステリア 嬉野 外構工事

西野エクステリア 嬉野 外構工事 西野エクステリア 嬉野 外構工事 西野エクステリア 嬉野 外構工事

西野エクステリア 嬉野 外構工事 西野エクステリア 嬉野 外構工事 

西野さんのサービスで花壇に植木を植えました!!
西野エクステリア 嬉野 外構工事



新築外構工事やカーポートへの変更、おしゃれな玄関回りが欲しい!等
お気軽に西野エクステリアへご相談下さい!





Contactお問い合わせ

カーポート、エクステリア、外構、造園、植栽、デッキなど
お庭のことならなんでもご相談下さい!

※造園・植栽に関してのご依頼は専門業者をご紹介いたします。

営業時間 9:00~19:00